












































About the Property
The building has undergoing major refurbishment which now see the building benefit from a high quality shared business lounge for all occupiers to use, external roof terrace and break out areas and upgraded common areas.
The offices suites have also being substantially refurbished to provide high quality, open plan office space, with new air conditioning, with an option of either traditional office space or an 'exposed services' style fit out.
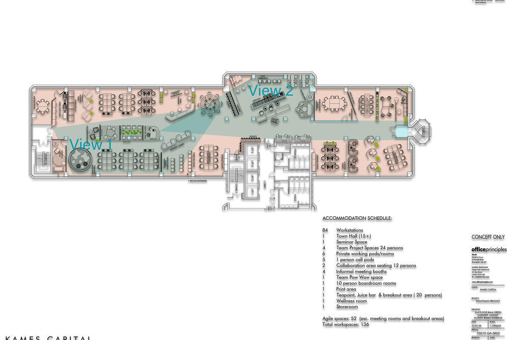
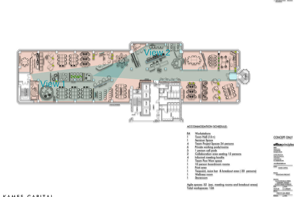
The floorplates provide bright open plan accommodation ideal for the demands of modern business. Suites can be provided ranging in size from approximately 1,700 sq ft upwards.
The property has accommodation over 3 wings, offering occupiers excellent choices in size, where they have the option of adjoining suites or continuous floors.
The offices suites have also being substantially refurbished to provide high quality, open plan office space, with new air conditioning, with an option of either traditional office space or an 'exposed services' style fit out.
The floorplates provide bright open plan accommodation ideal for the demands of modern business. Suites can be provided ranging in size from approximately 1,700 sq ft upwards.
The property has accommodation over 3 wings, offering occupiers excellent choices in size, where they have the option of adjoining suites or continuous floors.
Rob Darrington MRICS
Availability
| Floor | Size |
|---|---|
| 1st Floor | 3,903 Sq Ft |
| 2nd Floor | 5,403 Sq Ft |
| 3rd Floor | 4,763 Sq Ft |
| 4th Floor | 5,819 Sq Ft |
| 4th Floor Suite 1 | 1,989 Sq Ft |
| 4th Floor Suite 2 | 1,644 Sq Ft |
| 6th Floor | 4,416 Sq Ft |